бел. руб. с НДС
для оптовых покупателей
бел. руб. с НДС
для розничных покупателей
высота: 350 мм,
вес 1 мп — 49,6 кг.
Производство: РФ, Беларусь
- Оптовая и розничная продажа стальной балки, двутавра размером 350 мм.
- Безналичный и наличный расчет.
- Резка балки в размер.
- Предварительная подготовка заказа к погрузке.
- Доставка по Минску и Беларуси в удобное для вас время.
- Система скидок, рассрочка на приобретение.
- Изготовление металлоконструкций из стальной балки под заказ.
Оформите оптовый или розничный заказ онлайн при помощи быстрого заказа — кнопка «Купить в 1 клик».
Сформируйте и оплатите заявку на поставку разных позиций металлопроката на сайте через корзину — кнопка «В корзину».
- Описание
- Дополнительно
Металлическая двутавровая балка, двутавр 35Б1 (нормальная) характеристики
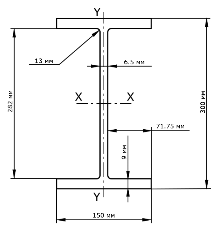
Тип C параллельными гранями полок Высота балки 350 мм Ширина полки 175 мм Толщина стенки 5 мм Длинна 12 метров Площадь поперечного сечения 52.68 см2 Масса 1 м 41.4 кг Ix, момент инерции 11094.49 см4 Wx, момент сопротивления 641.3 см3 ix, радиус инерции 145.12 мм Sx, статический момент полусечения 358.09 см3 Iy, момент инерции 791.54 см4 Wy, момент сопротивления 90.98 см3 iy, радиус инерции 38.76 мм Sy, статический момент полусечения 70.11 см3 Двутавровая балка (двутавр) номер 35Б1 применяется для придания надежности и жесткости металлическим и строительным конструкциям, используется в строительстве в качестве несущих элементов при возведении перекрытий и опор, для армирования стволов шахт, в машиностроительной и автомобильной промышленности, вагоностроении в качестве швеллера.
Стальная балка двутавровая высотой 350 мм производится в соответствии с требованиями ГОСТ 8239-89, ГОСТ 19425-74 и ГОСТ 26020-83.
Для того, чтобы купить балку двутавровую № 35Б1 добавьте товар «В корзину» или нажмите на кнопку «Купить в 1 клик» для быстрого оформления заказа. Вы можете оформить заказ связавшись менеджерами металлобазы «Аксвил».
- Материалы по темеСортамент, Маркировка, размеры, характеристики, виды двутавровых балок.Металлопрокат — металлическое изделие изготавливаемое на прокатных станах путём горячего, теплого или холодного пластического деформирования стальной заготовки (прокатки).
Балка двутавровая – стальное изделие, представляющее собой металлическую балку с сечением Н-образной формы. Изготавливается преимущественно из углеродистой либо низкоуглеродистой стали.
Чёрные металлы — железо и его сплавы (стали, ферросплавы, чугуны), в отличие от остальных металлов, называемых цветными. К чёрным металлам также относят марганец и иногда — хром.
Что такое сортовой металлопрокат? Виды и классификация сортового проката: арматура рифленая А3 и гладкая А1, полоса, шестигранник, квадрат, круг стальной.Что такое фасонный металлопрокат? Виды и классификация фасонного проката: равнополочный и не равнополочный уголок, двутавровая балка, швеллер, рельс, специальные профили.Подробное руководство по выбору двутавровой балки: типы (Б, Ш, К, М, С), размеры, расчет нагрузок и прогиба, таблицы применимости и сравнение с швеллером. Практические рекомендации и ошибки.Подробное сравнение швеллера и двутавровой балки. Разбираем геометрию, прочностные характеристики (моменты инерции и сопротивления), сферы применения в строительстве и промышленности. Алгоритм выбора для перекрытий, колонн, каркасов с учетом ГОСТ 35087-2024, 8240-97 и СП 16.13330.2017Каталог металлического профиля в Минске: уголок, профильные трубы, швеллер, двутавр, профнастил, металлоштакетник. Доставка по Беларуси.Двутавровая балка - механические и технические характеристики.Горизонтально-направленное бурение, ГНБ, Бестраншейная прокладка коммуникаций: Водопровод и канализация, Газопроводы и теплосети, Кабели связи, интернет и электропроводка, Прокол под дорогами и объектами, Замена трубопроводов.Получайте еженедельные спецпредложения на металлопрокат! Арматура, уголок, лист, трубы. Подпишитесь на рассылку и первыми узнавайте о горячих ценах.Металлопрокат, приобретение проката - Вопросы и ответы (FAQ).Металл, металлопрокат для сельскохозяйственных предприятий купить в Минске с доставкой по Беларуси. Индивидуальные условия поставки проката для агропромышленных компаний.Сталь, металл, металлопрокат для производства купить в Минске с доставкой по Беларуси. Индивидуальные условия поставки проката для производственных компаний.Металлопрокат для жилищно-коммунального хозяйства. Индивидуальные условия поставки проката для ремонта и обслуживания инженерных сетей.Металлопрокат для строительных компаний и строительных объектов. Индивидуальные условия поставки проката для строительства.Крупнейшие производители металлопроката (черный, нержавеющий, цветной, листовой, трубный, сортовой, фасонный прокат) в России и БеларусиМеждународные организации, разрабатывающие стандарты в области металлургии, металлопроката и металлоизделий. Международные стандарты: ISO, CEN/EN, DIN, BSI, SAC GB, JSA, ASME, ASTM, API, MSS, AWSКлассификация и виды сплавов. Сплавы черных, цветных, благородных металлов. Технологии получения сплавовЧто такое легирование металлов и сплавов, Легирующие элементы? Как происходит процесс легирования?Детальное руководство - Что такое сортамент и сортамент металлопроката? Как и почему формируется сортаменты?История открытия и обработки металлов, развития металлургической промышленности, производства металлопрокатаТаблицы размеров двутавровой балки









































